詳細說明
生產線布置圖
上料平臺—開卷機—伺服送料—沖孔沖壓—輥壓成型—切斷—翻轉送料

設備概述:
1.雙懸臂齒輪傳動裝置,機器的制造寬度可調整持續,可改變型材的寬度和高度。
2.牌坊20道成型,主機由交流電機,減速機,牌坊,變速箱,水平調節系統和軋制模具。機座和傳輸采用焊接結構,具有硬度的處理,軋輥材質為45#鋼。
3.輥壓成型工藝是由德國COPRA軟件制作;進行有限元工藝分析和檢查。提高線速度,降低成形阻力。從而保證設備的準確度和穩定性。

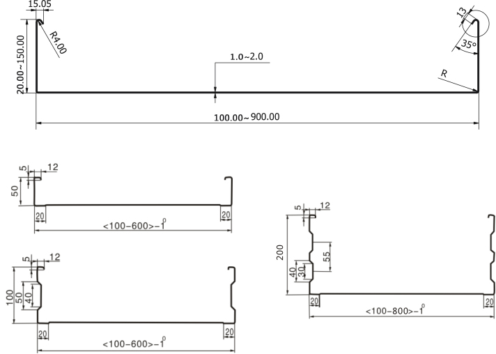
技術參數:




電纜橋架冷彎成型生產線成型部分


電纜橋架冷彎成型生產線傳動部分

電纜橋架板型圖




-
立體車庫設備冷彎生產線 -
TF機車用型鋼系列冷彎生產線 -
TF高速公路護欄冷彎生產線 -
TFU400-7X汽車大梁冷彎生產線 -
TF金屬倉1.2-27/90倉頂板冷彎生產線 -
TF金屬糧倉倉儲立柱冷彎生產線 -
TF養雞設備雞籠飼喂型材冷彎生產線 -
TF糧食提升機外殼生產線 -
TF料倉波紋板冷彎生產線 -
TF畜牧定位欄底梁冷彎生產線 -
TF養殖設備型材系列冷彎生產線 -
陽極板行業--480、ZT24冷彎生產線 -
TF1500*6保護板冷彎生產線 -
TF光伏支架C型鋼冷彎生產線 -
TF光伏支架/金屬支吊架型鋼冷彎生產線 -
TF鋼管束型鋼冷彎生產線 -
鋼板樁冷彎生產線 -
腳踏板冷彎生產線 -
門板設備冷彎生產線 -
門框設備冷彎生產線 -
TF箱房型鋼生產線 -
TF抱合梁冷彎生產線 -
聚氨酯板材設備冷彎生產線 -
屋面板冷彎生產線 -
TF樓承板冷彎生產線 -
琉璃瓦冷彎生產線 -
TF C/Z型鋼冷彎生產線 -
TF動力柜立柱冷彎生產線 -
梯邊機冷彎生產線 -
機車導軌冷彎生產線 -
母線槽冷彎生產線 -
貨架底板冷彎生產線 -
貨架拉桿冷彎生產線 -
TF 貨架立柱冷彎生產線 -
電纜橋架冷彎生產線 -
金屬燈罩冷彎生產線 -
電氣柜冷彎生產線 -
電梯導軌冷彎生產線
















